Sichere Kapitalanlage mit Entwicklungspotenzial - 6 Familienhaus in Dortmund Huckarde
Objektart
Adresse
Objektdaten
Informationen
Ausstattung
Details
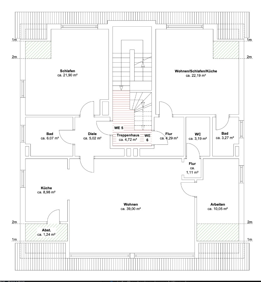
Dieses gepflegte Mehrfamilienhaus aus dem Baujahr 1960 überzeugt durch seine solide Bausubstanz, seine nachhaltig durchgeführten Sanierungen sowie eine äußerst attraktive Wohnungsstruktur. Insgesamt umfasst das Gebäude sechs Wohneinheiten, die sich durch funktionale Grundrisse und eine hohe Vermietbarkeit auszeichnen. Im Dachgeschoss steht ein bereits vorausgebauter Wohnungs-Rohling zur Verfügung, welcher mit etwas Aufwand in eine vollständige Wohneinheit umgewandelt werden kann.
Im Jahr 2002 erfolgte eine umfassende Modernisierung des gesamten Hauses. Dabei wurden unter anderem die Elektrik inklusive Leitungen, die Wasserleitungen sowie das Dach erneuert. Zudem erhielt das Gebäude einen neuen, modernen Eingangsbereich inkl. Sicherheitstür und Briefkastenanlage, der die Gebäudesubstanz zusätzlich aufwertet.
Im Jahr 2015 wurde das Erdgeschoss von einer Gewerbeeinheit in zwei hochwertige Wohnungen umgebaut. Für die erfolgte Nutzungsänderung liegt eine entsprechende Genehmigung vor. Beide Einheiten präsentieren sich in einem makellosen Zustand und sind optimal für die Vermietung geeignet.
Das Haus ist derzeit voll vermietet und verfügt über stabile Mietverhältnisse. Die aktuellen IST-Mieteinnahmen belaufen sich auf 32.856,00 EUR jährlich. Auf Basis des realistischen Mietspiegels ergibt sich eine Soll-Miete von ca. 53.478,- EUR jährlich, was zusätzliches Entwicklungspotenzial bietet.
Wohnungsaufteilung:
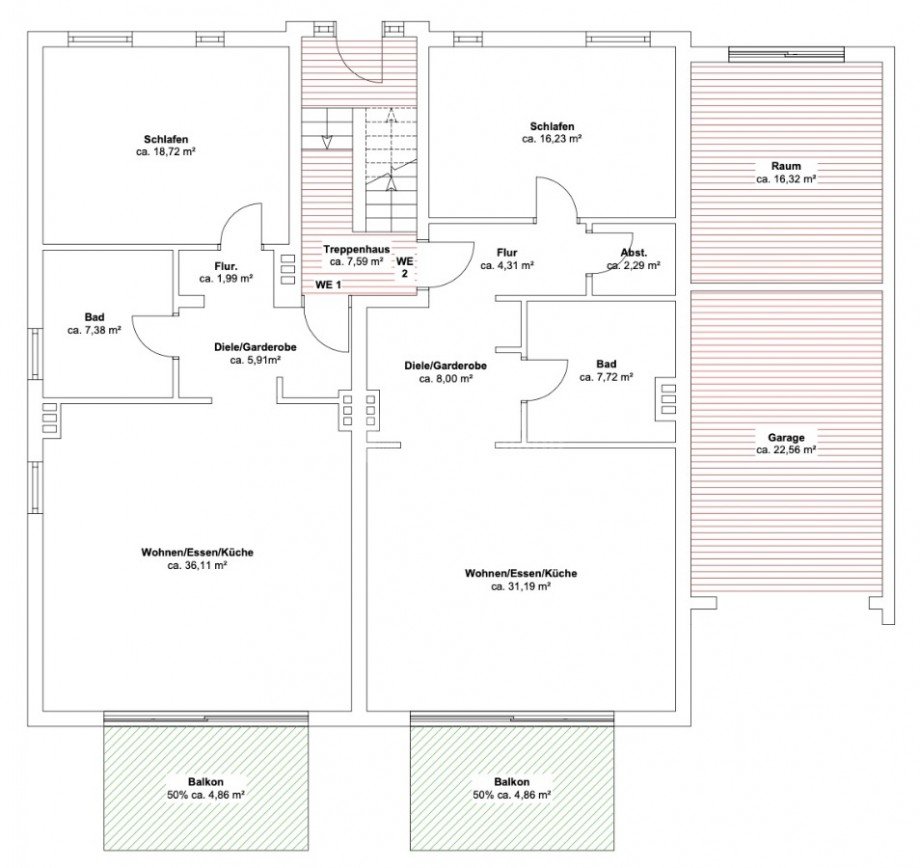
Erdgeschoss links (EGL): 2 Zimmer, großer Balkon
Erdgeschoss rechts (EGR): 2 Zimmer, großer Balkon
1. Obergeschoss links (1. OGL): 3 Zimmer, zwei Balkone
1. Obergeschoss rechts (1. OGR): 2 Zimmer, Balkon
Dachgeschoss links (DGL): 1,5 Zimmer
Dachgeschoss rechts (DGR): 3 Zimmer
Ausbaureserve im Dachgeschoss
Die Wohnungen ab dem Obergeschoss verfügen über im Jahr 2002 sanierte Bäder, die sich in einem zeitgemäßen Zustand befinden. Dank der vielfältigen Grundrissgestaltung und der breiten Abdeckung der gefragtesten Wohnungsgrößen, von kompakten 1,5-Zimmer-Wohnungen bis hin zu großzügigen 3-Zimmer-Einheiten, bietet das Objekt eine sehr hohe Vermietbarkeit und spricht einen breiten Mieterkreis an.
Auch eine teilweise Selbstnutzung bietet sich dank der durchdachten Grundrisse hervorragend an. Sprechen Sie uns gerne zu Ihren Plänen und Vorstellungen an. Wir unterstützen Sie dabei, herauszufinden, ob diese Immobilie optimal zu Ihnen passt.
+ Erdgeschoss vollständig saniert (2015)
+ Dach erneuert (2002)
+ Elektrik erneuert (2002)
+ Wasserleitungen erneuert (2002)
+ Garage vorhanden
+ Drei Gas-Etagenheizungen + eine Gas-Zentralheizung
+ Großzügige Balkone / Terrassen
+ Kunststofffenster mit zweifach-Isolierverglasung
+ Jalousien vorhanden
+ Gemeinschaftlicher Wasch- und Trockenkeller
+ Separate Kellerräume
+ Gegensprechanlage
Das Mehrfamilienhaus liegt in einem ruhigen, gewachsenen Wohngebiet im Dortmunder Westen und bietet ein angenehmes, familiäres Umfeld. Die Umgebung ist geprägt von kleineren Mehrfamilienhäusern und gepflegten Grünbereichen, die zu einem entspannten Wohngefühl beitragen.
In der näheren Umgebung stehen vielfältige Erholungsmöglichkeiten zur Verfügung. Besonders hervorzuheben ist der Revierpark Wischlingen, einer der beliebtesten Freizeit- und Naturparks der Stadt. Hier finden sich weitläufige Grünflächen, Spazierwege, Waldbereiche sowie ein Natursee, der zu ausgedehnten Spaziergängen oder entspannten Stunden im Freien einlädt. Auch das nahegelegene Naturschutzgebiet Hallerey bietet schöne Wege entlang von Wasserflächen und Wiesen - ideal für Naturfreunde und Jogger.
Zudem befinden sich verschiedene Sport- und Freizeiteinrichtungen in kurzer Distanz. Dazu zählen die Wellness- und Badeeinrichtungen in Wischlingen mit Hallenbad, Sauna und Sportangeboten. In der Umgebung gibt es außerdem mehrere Sportvereine, Fußballplätze, Fitnessstudios sowie Angebote für Tennis und weitere Breitensportarten.
Für Familien attraktiv sind zusätzlich die zahlreichen Spielplätze und kleineren Grünanlagen im Wohnumfeld, die sich gut für kurze Wege und spontane Aufenthalte im Freien eignen.
Insgesamt bietet die Lage eine sehr ausgewogene Mischung aus guter Infrastruktur und vielseitigen Freizeit- und Erholungsmöglichkeiten. Ideal für Bewohner, die sowohl Ruhe als auch Freizeitqualität schätzen.
Weitere Entfernungen:
Innenstadt Dortmund: 12 Minuten (Pkw)
Innenstadt Bochum: 20 Minuten (Pkw)
Revierpark Wischlingen: 5 Minuten (Pkw)
TU Dortmund: 10 Minuten (Pkw)
Supermarkt: 5 Minuten (fußläufig), 2 Minuten mit dem Pkw
Die Anbindung an das überregionale Straßennetz ist ausgezeichnet: Die nächstgelegenen Auffahrten zur A40 und A45 befinden sich nur wenige Fahrminuten entfernt und ermöglichen eine schnelle Verbindung sowohl in Richtung Ruhrgebiet als auch ins südliche und nördliche Umland. Damit eignet sich die Lage ideal für Pendler und alle, die regelmäßig weitere Strecken zurücklegen.
Bitte achten Sie bei einer Außenbesichtigung aus Respekt den Nachbarn gegenüber auf Diskretion. Jegliche direkte Kontaktaufnahme mit dem Eigentümer oder dessen Nachbarn wird mit einem Ausschluss aus dem Interessentenkreis geahndet.
IMMOBILIA DEUTSCHLAND
Voßkuhle 37a, 44141 Dortmund
www.mein-immobilienmakler.de
Erstellen Sie sich eine KOSTENLOSE IMMOBILIENBEWERTUNG auf unserer Internetpräsenz: www.mein-immobilienmakler.de
Die in diesem Exposé gemachten Angaben beruhen auf Auskünften des Eigentümers oder vorgelegten Plänen und Berechnungen. Wir übernehmen daher keine Haftung, insbesondere für Flächenangaben, Grundrisse oder Lageskizzen. Angaben zum Energieausweis: Energieausweis-Typ: verbrauchsorientiert, Endenergieverbrauch: 125,1 kWh Energieeffizienklasse: D, Hauptenergieträger: Erdgas, Etagenheizung, Bj. 1960
Ansprechpartner
Telefax: 0231 - 84010169
kontakt@immobilia-deutschland.de
Energieausweis (Verbrauchsausweis)
125 kWh / (m²*a) Energieverbrauchskennwert
125 kWh / (m²*a) Energieverbrauchskennwert
125 kWh / (m²*a) Energieverbrauchskennwert
Weitere Informationen
| Wesentlicher Energieträger | Gas |
| Energieausweis Ausstelldatum | 2018-12-06 |
| Energieausweis gültig bis | 05.12.2028 |
| Energieausweis Jahrgang | vor 1.5.2014 |
| Energieausweis Werteklasse | D |
| Energieausweis Baujahr | 1960 |
| Energieausweis Gebäudeart | Wohngebäude |
| Heizung | Etagenheizung, Zentralheizung |
| Befeuerung | Gas |
